Description
3PC Floating Ball Valve
Working principle:
1.The floating ball valve has only the upper stem of the ball, and the ball can be slightly displaced, so it is called floating ball valve.
The fixed ball valve has a fixed shaft at the bottom of the ball, which fixes the position of the ball, so it cannot be displaced, so it is called a fixed ball valve.
2. floating ball valve ball due to the pressure of the medium, the ball displacement, tightly attached to the seat to achieve sealing, the need to consider whether the seat material can withstand the working pressure.
The ball of fixed ball valve is fixed, is driven by the pressure of the medium seat movement, tightly on the ball to achieve sealing.
Stainless Steel Ball Valves
DKV provides a complete range of high-quality manual stainless steel ball valves, available in one-piece, two-piece, three-way, and other configurations. These valves are designed to control the flow of water, oil, gas, and other compatible fluids with precision and reliability.
Our extensive inventory covers sizes from 1/4″ to 4″, ensuring you can find the right stainless steel ball valve to meet your application needs.
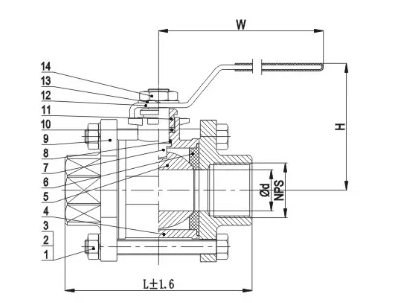
Outline and Connecting Measurememt
| No. | Part Name | Material |
| 1 | Nut | SS304 |
| 2 | Spring Washer | SS304 |
| 3 | Bolt | SS304 |
| 4 | Body | SS316/SS304 |
| 5 | Ball | SS316/SS304 |
| 6 | Seat | PTFE |
| 7 | Stem | SS304 |
| 8 | Stem Gasket | PTFE |
| 9 | Cap | SS316/SS304 |
| 10 | Packing | PTFE |
| 11 | Gland | SS304 |
| 12 | Handle | SS201 |
| 13 | Spring Washer | SS304 |
| 14 | Nut | SS304 |
| SIZE | 1/4″ | 3/8″ | 1/2″ | 3/4″ | 1″ | 1 1/4″ | 1 1/2″ | 2″ | 2 1/2″ | 3″ | 4″ |
| DN | 8 | 10 | 15 | 20 | 25 | 32 | 40 | 50 | 65 | 80 | 100 |
| D | 10.5 | 10.5 | 15 | 20 | 25 | 32 | 38 | 50 | 65 | 80 | 100 |
| L | / | / | 64 | 71 | 83 | 98 | 110 | 128 | 169 | 193 | 239 |
| H | 48 | 48 | 60 | 64 | 77 | 78 | 90 | 102 | 128 | 135 | 160 |
| T | 100 | 100 | 100 | 110 | 137 | 158 | 163 | 172 | 210 | 212 | 253 |
Item | Ball Value |
Application | General |
Port Size | DN15-DN200 |
Warranty | 1 year |
Place of Origin | Guangdong China |
Power | Manual |
Temperature of Media | Low Temperature, Medium Temperature, Normal Temperature |
Brand Name | DKV |
Structure | Ball |
Media | Water |
Customized support | OEM |
Body material | Stainless Steel 304/316 |
Working pressure | 1000PSI(PN63) |
Connection | Thread |
Work Temperature | -29°C to 180°C |
Operation | Standard Bore, Quarter Turn |
Medium | Water Oil Gas |
Seal Material | PTFE |
Product Details
3 Piece Stainless Steel
Ball Valve
No need to completely
remove the valve from the
line for cleaning,
maintenance or repair work








